0
Retour

Pont-à-Mousson (54700)
Maison neuve RE 2020 de 155m² habitables en plain pied avec extérieur, garage et carport, en impasse calme, ce

Prix
du bien
1 350 € CC*
réf : 9048

01
Général

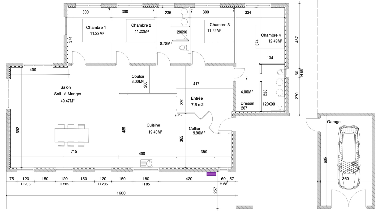
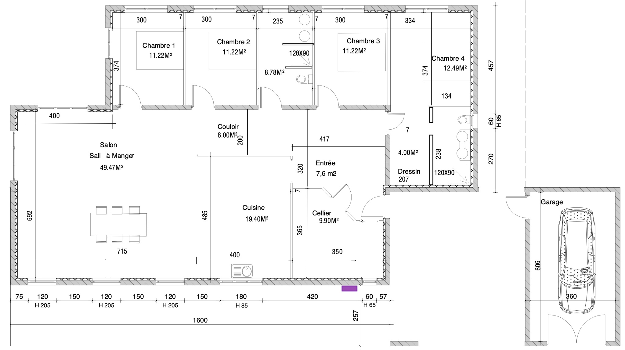
Belle maison neuve en plain pied de 155m² habitables comprenant :

- Une entrée de 10m²

- Un grand cellier dans l'entrée avec salle de chaufferie/Pompe à chaleur/module de buanderie

- 4 belles chambres dont une avec salle d'eau privative et toilette

- Une salle d'eau commune avec toilette également

- Un grand salon séjour ouvert sur la cuisine équipée de 70m² ! Très lumineux avec ses 6 grandes ouvertures, dont 2 grandes portes-fenêtres menant à la terrasse.

Le bien comprend également un garage fermé motorisé attenant à la maison ainsi qu'un carport ou l'on peut stationner 2 VL.

Le bien est en cours de finition, il ne reste que la cuisine et les équipements sanitaires à poser.

Dossiers et visites possibles dès aujourd'hui, libre de suite !

Toutes dernières normes de constructions/ excellente performance énergétique/ chauffage au sol par pompe à chaleur dernière génération.

02
Plus d'infos

  • Code postal
    54700
  • Surface habitable (m²)
    160 m²
  • surface terrain
    420 m²
  • Surface loi Boutin (m²)
    160 m²
  • Nombre de chambre(s)
    4
  • Nombre de pièces
    5
  • Meublé
    NON

03
Financier

  • Loyer CC* / mois
    1 350 €
  • Honoraires TTC charge locataire
    1 000 €
  • Dont état des lieux
    200 €
  • Dépôt de garantie TTC
    1 200 €
  • Charges locatives (Previsionnelles mensuelles les avec regularisation annuelle)
    50 €

04
Plus de détails

  • Nb de salle de bains
    2
  • Cuisine
    Américaine
  • Type de cuisine
    Equipée
  • Mode de chauffage
    Pompe à chaleur
  • Type de chauffage
    Au sol
  • Format de chauffage
    Individuel
  • Terrasse
    OUI
  • Murs mitoyens
    1
  • Nombre de garage
    1
  • Année de construction
    2022

05
Copropriété

  • Copropriété
    NON

06
Bilan énergétique

DPE GES
Nos outils

Plus d'informations sur
le quartier

  • Commerces et santé
  • Loisirs
  • Ecoles
  • Transports
  • Pratique

Ce bien
m'intéresse

* CC : Charges comprises