0
Retour

Pont-à-Mousson (54700)
Maison contemporaine neuve – 134 m² – 5 pièces – PONT-À-MOUSSON

Prix
du bien
299 000 €
réf : KOC192

01
Général

Dans un environnement résidentiel calme et recherché, au sein du Bois le Prêtre, cette maison contemporaine développe 134 m² habitables et bénéficie d’un cadre agréable, à proximité du centre-ville, des commerces et des promenades le long de la Moselle.


Son architecture moderne se distingue par des lignes sobres et une conception pensée pour laisser entrer un maximum de lumière, notamment grâce à une grande ouverture vitrée verticale qui structure l’entrée et apporte du cachet dès les premiers instants.
La maison est déjà construite et fonctionnelle. Il reste à finaliser certains éléments intérieurs, notamment les menuiseries, ce qui vous permet de personnaliser les finitions selon vos préférences.
Agencement :

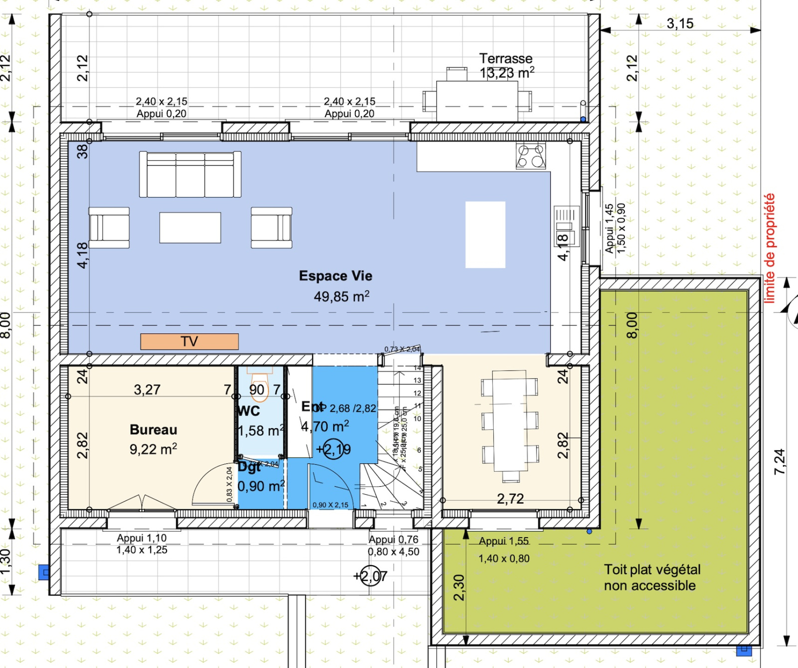
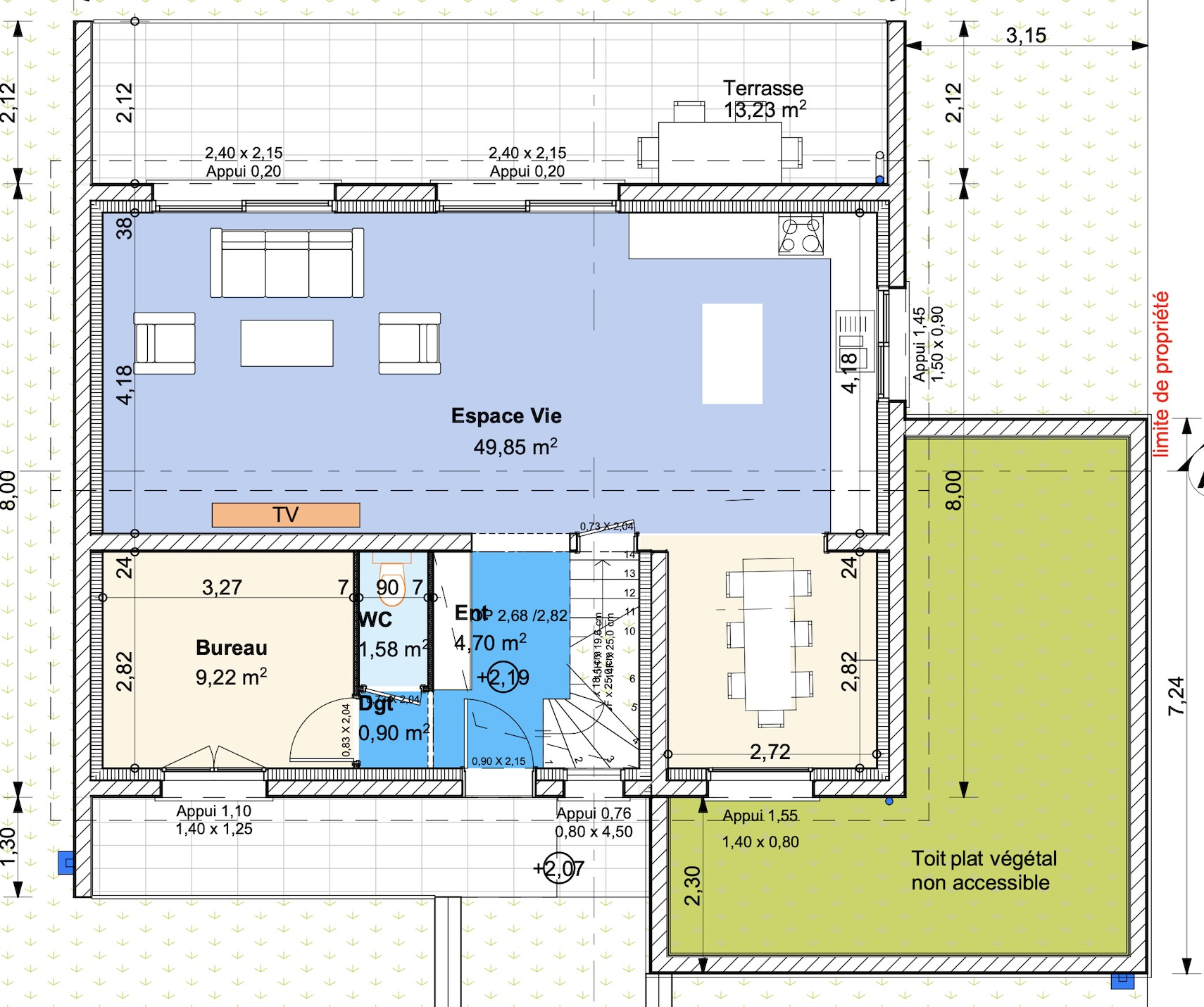
Au rez-de-chaussée : La pièce principale, d’environ 50 m², offre un bel espace ouvert à aménager librement entre salon, salle à manger et cuisine. La luminosité y est omniprésente grâce aux nombreuses ouvertures. Un bureau indépendant permet d’envisager facilement le télétravail ou une activité professionnelle. Un WC séparé complète ce niveau.

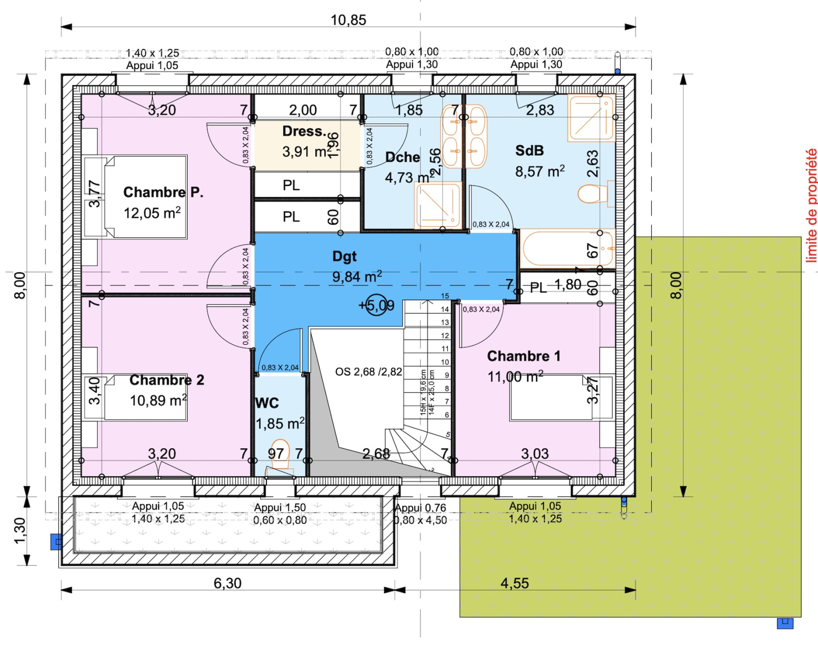
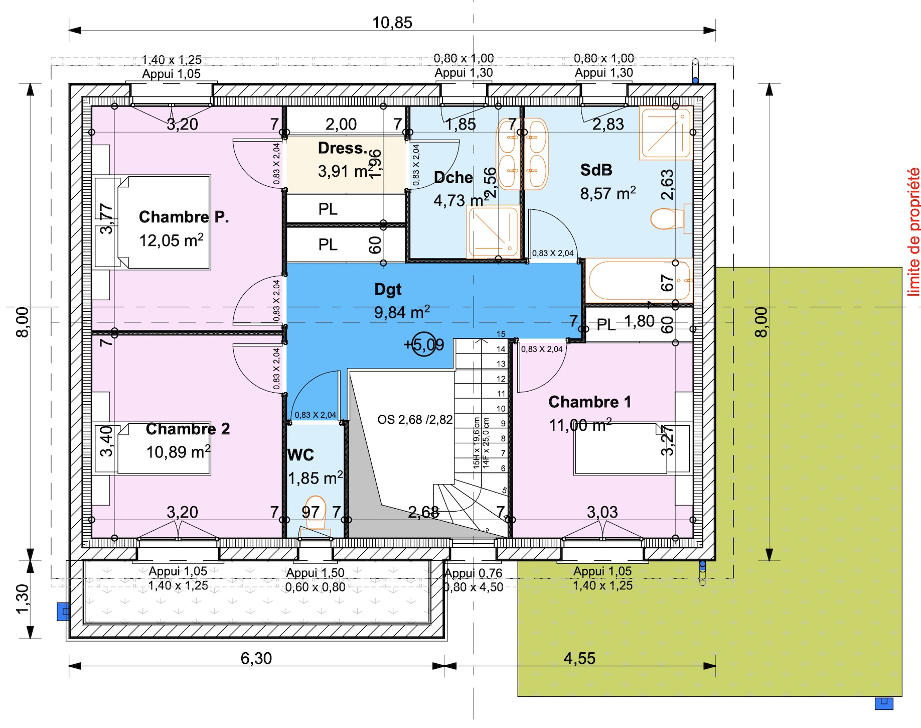
À l’étage : 
Trois chambres composent l’espace nuit, dont une chambre parentale avec emplacement prévu pour un dressing et une salle d’eau.
Une salle de bain avec WC vient compléter cet étage.
Annexes et équipements : 
La maison dispose d’un garage double motorisé. Les accès extérieurs étant déjà réalisés, aucun travaux supplémentaire n’est à prévoir de ce côté.
En rez-de-jardin, une grande surface annexe d’environ 100 m² constitue un véritable atout. Une partie d’environ 55 m² est facilement exploitable en complément du garage.
Accessible depuis la maison, le garage et le jardin, cet espace peut être utilisé selon vos besoins : stockage, atelier, espace de loisirs ou salle de sport.
Localisation :
La maison se situe à environ 30 minutes de Metz et de Nancy, offrant un bon compromis entre tranquillité et accessibilité.
Pour plus d’informations ou pour organiser une visite, vous pouvez nous contacter.

02
Plus d'infos

  • Code postal
    54700
  • Surface habitable (m²)
    134,10 m²
  • surface terrain
    371 m²
  • Surface loi Carrez (m²)
    135 m²
  • Nombre de chambre(s)
    4
  • Nombre de pièces
    5

03
Financier

  • Prix de vente
    299 000 €
  • Les honoraires d'agence seront intégralement à la charge du vendeur
     

04
Plus de détails

  • Nb de salle de bains
    2
  • Mode de chauffage
    Pompe à chaleur
  • Type de chauffage
    Au sol
  • Format de chauffage
    Individuel
  • Terrasse
    OUI
  • Nombre de garage
    1
  • Année de construction
    2021

05
Copropriété

  • Copropriété
    NON

06
Bilan énergétique

DPE GES
Nos outils

Plus d'informations sur
le quartier

  • Commerces et santé
  • Loisirs
  • Ecoles
  • Transports
  • Pratique

Ce bien
m'intéresse